1. Kva er stoda med Ulstein nye kyrkje per februar 2026?
Ulstein kyrkje ligg framleis i langtidsplanane for Ulstein kommune, men ikkje som ei investering med prioritet 1. Dei fleste i det politiske miljøet er samde i at Ulstein treng ei ny kyrkje, men den økonomiske situasjonen i kommune gjer for tida ikkje rom for eit så stort investeringsprosjekt.
2. Kva er Ulstein sokn sin strategi vidare for bygging av Ulstein nye kyrkje?
Soknet har i alle år hatt ein god dialog med kommunen om prosessen med Ulstein nye kyrkje. Vi har fylgt opp alle pålegg og oppdraga vi har fått for å gjere prosjektet klar for ei politisk handsaming. Soknerådet ser seg best tent å opprettehalde den gode dialogen, og vil jobbe saman med både kommuneadministrasjonen og det politiske miljøet for å kunne legge fram saka om bygging av Ulstein kyrkje slik at eit positivt vedtak er det mest trulege utfallet.
3. Kva ville det koste å bygge Ulstein nye kyrkje i 2026?
Med prisstigning for byggekostnader frå juni 2017 til november 2025 på 41% (kjelde SSB) vil kostnaden for realisering av Ulstein nye kyrkje (etter omprosjekteringa 2020) vere på 126,2 millionar norske kroner eks. mva (157,75 MNOK inkl. mva)
4. Kva type alternativ finst til prosjektet?
Med ein kostnadsramme for Ulstein nye kyrkje er det fleire som spør om ikkje prosjektet kan reduserast ved å ta ut vesentlege element, eller ved å finne heilt andre alternativ.
Soknerådet held fast på at det framleis følgjande sentrale punkt for ei ny kyrkje. Ulstein nye kyrkje skal:
- gi tenlege lokale for eit mangfaldig kyrkjelydsarbeid for barn og ungdom, diakoni og kultur.
- avlaste eksisterande kyrkje for å kunne feire gudsteneste, dåp, konfirmasjon, vigsler, gravferd og andre arrangement og får eit meir forsvarleg bruk av det listeførte og kulturhistoriske bygget Ulstein kyrkje er
- ha eit større kyrkjerom som gir plass til langt fleire enn eksisterande kyrkje, og gi arbeidstilhøve for tilsette i tråd med arbeidsmiljølova og ei utforming som er universell tilrettelagt.
- gi høve til ei dagsopen kyrkje med tilgjengeleg tilsette gjennom kontor i same bygg
Ulstein sokn er positiv til å drøfte alternativ som kan romme behova Ulstein sokn har i eit anna prosjekt enn det som er utarbeidd, men er realistiske på at det truleg ikkje vil gi betydeleg lågare kostnader å starte prosessen på nytt eller med ein ny lokalisering.
Dersom det finst samarbeidspartnarar frå næringslivet til å utgreie eit nytt prosjekt saman med soknet, og som gir gode synergieffekt for ei arbeidskyrkje til ein tydeleg lågare kostnad så vil soknet vere positiv til å sjå på muligheitene som ligg i det.
5. Kva skjer med dagens Ulstein kyrkje når den nye kyrkja blir bygget?
Ulstein kyrkje er og vil forbli eit viktig brukslokale for soknet og samfunnet. Det er truleg mange som også i framtida vil ønske å bruke kyrkja til høgtidene i livet, til konsert og kulturarrangement. Med eit framleis venta stigande folketal og aukande tal på eldre vil også presset på kyrkjebygget auke, og det er viktig å kunne avlaste kyrkjebygget med eit anna sakralrom. Som framleis viktig brukslokale med vernestatus tek soknet, i samarbeid med kommunen, ansvaret for vedlikehald på alvor og lage planer som ivaretek Ulstein kyrkje for framtidige generasjonar
6. Kva skjer med dei innsamla midlar til Ulstein nye kyrkje?
Midlar som er samla inn er satt av til eit bunde fond til bygging av Ulstein nye kyrkje og kan ikkje brukast til noko anna. Midlane er plassert på høgrentekonto som gir den avkastninga som er mogleg å få med ein risiko tilnærma null for tap av grunnkapitalen.
7. Treng soknet framleis å samle inn midlar til Ulstein nye kyrkje?
Sjølv om dei 10 år med gjevarteneste mange gjevarar har forplikta seg til snart har gått er det viktig at det blir samla inn meir pengar. Med ei målsetting om 20% av eigenmidlar i kommunale investeringsprosjekt er det mange kroner til vi treng. Innsamlingsaksjonen «Kyrkjebyggar i vår tid» vil halde fram, og innsamling vil også framleis skje gjennom kollekt i nokre gudsteneste.
Men soknerådet ser at det er ikkje enkelt å auke gjevartenesta utan at vi får eit konkret politisk vedtak om bygging av Ulstein nye kyrkje.
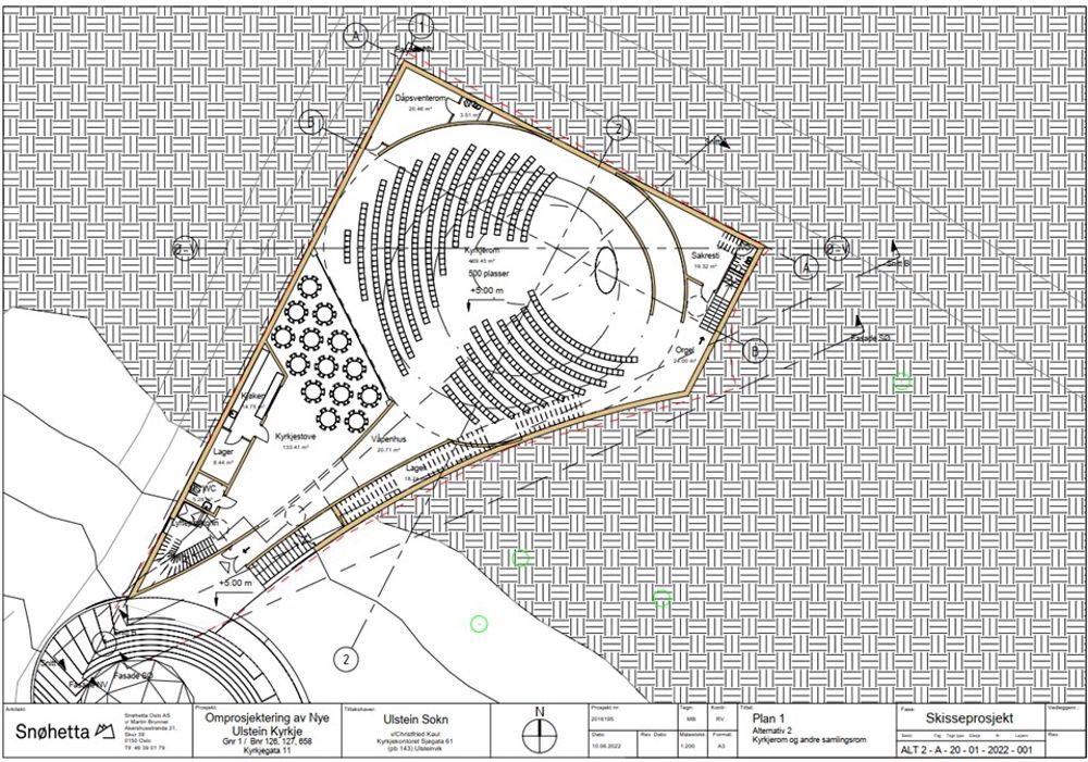
illustrasjoner etter omprosjekteringa






